Bizi Takip Edin
Sosyal medya hesaplarımızdan bizi takip edebilirsiniz.
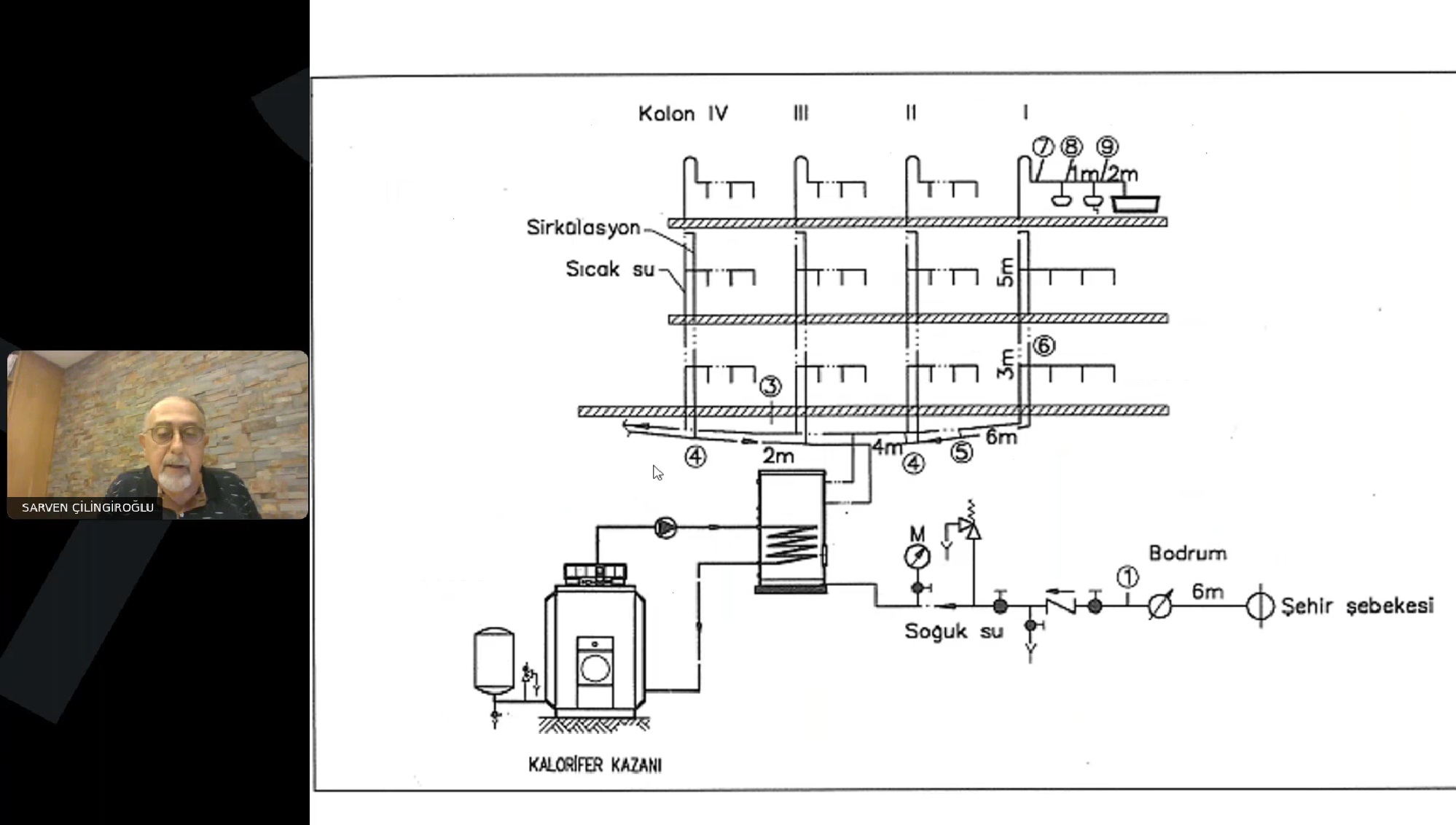
TTMD Akademi’nin çevrimiçi eğitimleri kapsamında organize edilen “Bina Tesisatı (Sıhhi Tesisat) Eğitimi” 15 – 30 Eylül 2025 tarihleri arasında ikinci kez gerçekleştirildi. Prof. Dr. Ahmet Arısoy, Sarven Çilingiroğlu ve Serdar Uzgur’un eğitmenliğini yürüttüğü ve toplam 13 kursiyerin katıldığı eğitimde, binalardaki temiz su ve pis su tesisatı dizaynı temel olarak anlatıldı.
Eğitim kapsamında, temiz soğuk su tesisatı, suyun sürdürülebilir kullanımı, yeni eğilimler, su maliyetleri, hijyen, ses karşı alınabilecek önlemler, suyun depolanması, depolama ihtiyacı TS1258, basınçlandırma tesisatı, konutlarda su ihtiyacı, hidrofor hesabı, boru şebekesi, boru tesisatı hesabı, temiz sıcak su tesisatı hesabı, konutlarda sıcak su ihtiyacı, boyler hacmi, boru ve vanalar, pis su havalandırma, pis su tesisat boyutlandırma, yağmur suyu tesisatı ve yüksek yapılarda sıhhi tesisat konuları işlendi. Eğitime sonunda kursiyerlere katılım belgesi verildi.
TTMD Akademinin sonraki eğitimlerinden haberdar olmak için: www.ttmd.org.tr
Sosyal medya hesaplarımızdan bizi takip edebilirsiniz.